
Circular Remelt Tank
The consistency of the product must obtain a firmer texture when it is filled and if this texture is not optimal the product will be diverted to the remelting system, melted and added to the buffer tank for re-processing. The Circular Remelt Tank is preferred over the Rectangular remelt Tank for margarines as the Circular Remelt Tank is provided with an agitator to keep the emulsion intact before it is transferred back to the Buffer Tank.
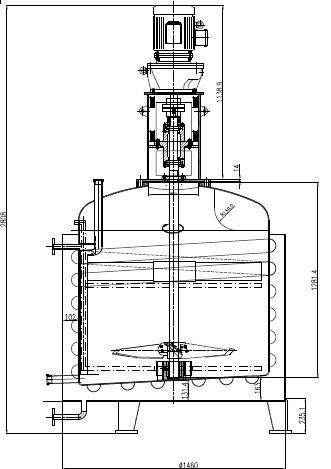
The tank shall be of SS-316L and designed with tori spherical dish at top & flat bottom. The support for agitator will be installed on the top dish. The top dish shall have manhole with cover, product inlet and air vent with cap. The circular Re melt Tank shall comprise of a hinged door provided in the Top Dish. There shall be two sets of Coils one on upper level where the blocks will be unloaded and the other at bottom level about 50 mm above the Bottom Dish. The Tank shall comprise of Limpet Coils for hot water circulation, insulated and cladded. The outlet nozzle at the bottom is raised above the bottom level of the coil from inside to ensure the bottom coil is always under the fluid to avoid charring of milk proteins. Top Dish shall also be provided with a nozzle with dip pipe till the bottom of Bottom Dish for re-circulation. The tank shall be standing on 3 legs. The Agitator shall be specially designed for highly viscous products. The tank will be Mirror finished from inside. The tank shall have a Spray Nozzle for CIP Cleaning. The Tank shall be complete with an RTD sensor for continuous monitoring of temperature at all times and high and low level indication and control.

Comments are closed.
