
Twin Head Filling Station [Manual Loading]
The Dozing Station volumetrically dozes the product into the Resting Tube with the help of a hydraulically operated cylinders, thus minimizing the return of the product to the Blending Tanks during the packaging process. Since the dozing is volumetric, the station consistently dozes the requisite quantity of the product into the Resting Tubes.

Twin Head Filling Station [Auto Loading]
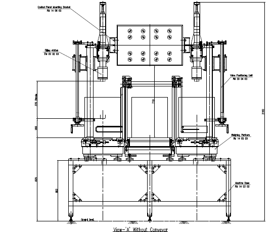
The Twin Head Filling Station is a Bag in Box filler to Pack Margarine in 10-25 Kg Boxes. The Twin Head Filling Station shall be a load cell based filling system with 2 nos of Programmable Filling Controllers and 01 no of Programmable Logic Controller [PLC] based control panel for the automation of weighing and packing of Bakery Shortening / Margarine with 2 weighing stations / Platforms each capable of weighing upto 20 kgs with least count of 05 grams.


Comments are closed.
