Margarine Pilot Plant
The lab scale unit designed by SIPEPL is a universal plant of nominal capacity 100 kgs/hr suitable for the manufacture of various specialty fats to help you with research and development of Specialty fats on different taste and textures sought by the growing demand of the market.
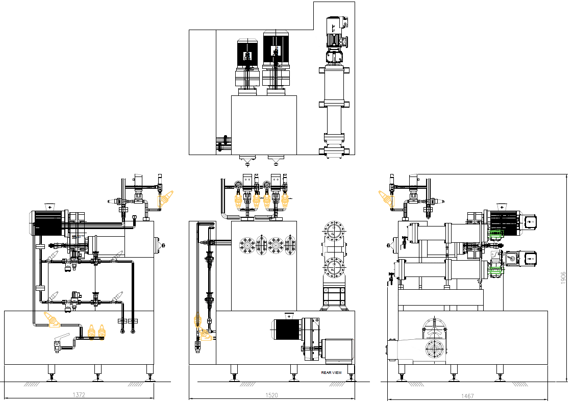
The Lab Scale model is a SCADA operated Pilot Plant will compress of two Sinitators and two Crystallizers. A wide range of capacity from 50 kgs/hr to 150 kgs/hr is made possible with the help of variable frequency drives on which the Sinitators operate on and the automatic speed control of the Ammonia Compressor that can automatically be set from 10%-100% capacity depending on the rate of production. The Lab Scale model is a skid mounted equipment complete with two batching tanks mounted on Load cells to create batches, high pressure piston pump, MFC controlled nitrogen dozing unit, homogenizing valve and resting tube enabling the customer to make all Specialty Fats possible. The Lab Scale Plant shall be completely automatic, SCADA operated with data logging of important parameters for scaling up to a commercial scale.


Comments are closed.
