Continuous Remelt
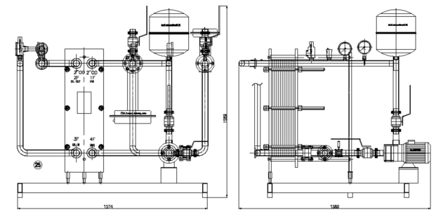
The Continuous Remelt used for melting the crystallized product uses a Plate Heat Exchanger. The PHE Plates shall be of Stainless Steel AISI 316L, and frame of Mild Steel, cladded with Stainless Steel plates suspended on two stainless steel shafts and are edge clamped with bolts. The PHE is made up of 1 section for re-melting of product using hot water. 95°C Hot water generated for the Hot Water unit shall be used for maintaining the temperature in the water section of the Continuous Remelt. Control Valve with Digital Positioner is provided in the hot water line shall modulate as per the feedback of the temperature of the product in the process side.
Oil shall enter the PHE from the Packaging Machines pushed by the Positive Displacement Plunger Pump; hence no additional pump shall be required. A safety valve in the line before the PHE shall be set at 7.5 bar to bypass the PHE to safeguard the gaskets of the PHE in the event of high pressure developed in the return lines. The Continuous Remelt shall be complete with controls for Hot water flow control to maintain a temperature of +/- 0.5 °C from the set value with other accessories such as strainers, ball valves, air vents, safety relief valves, expansion tanks.

Comments are closed.
